千葉県君津市で980万円!! 房総半島を楽しみ尽くすベースキャンプにも!? 夢のガレージライフを格安で手に入れるVol.12
多くのバイク乗りが憧れるガレージ付き物件。「格安で楽しめるガレージライフ」について、ライフスタイルにも造詣の深いライターの後藤武さんが、実際の物件とともに考察します。
アクアラインで都心とつながる。覚悟を決めてリノベに挑戦も
バイク好き憧れのガレージ付き中古物件を紹介するこの連載ですが、今回は大物登場です。
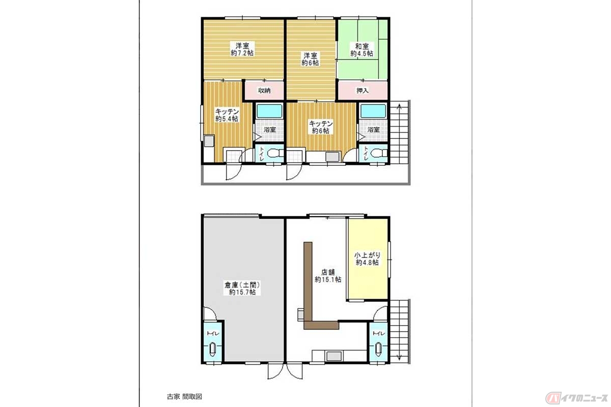
価格も例外的に高いのですが、間取り図を見てください。2階に住居が2つあります。1階も店舗と倉庫に分かれていて、それぞれにシャッターがあります。つまり2人が別々のガレージライフを送れるということ。
2人で購入すれば半分になりますし、1人で購入して誰かに賃貸するとか、独り占めしてでっかく使うとか、いろいろなスタイルが考えられます。
しかも場所は房総半島の君津市なので、都心から通うことも比較的容易。かなり魅力的な物件なんです。こういう面白い物件が出てくるのが、中古物件探しの面白いところです。

この物件があるのは君津市糠田で、都心から行くと館山自動車道「君津IC」に近く、国道127号や「房総スカイライン」へのアクセスも良好です。アクアラインからもそれほど離れていないので、都心から週末に通うのも苦にならないのではないかと思われます。
しかも魅力はこの倉庫的な外観。大人の秘密基地感がプンプン漂います。ピンクの外壁も面白いけれど、好きなカラーで塗っても面白そう。土地面積も155.3平米あります。
間取り図を見ると、1階は約20畳の店舗スペースと、約15.7畳の倉庫スペース(土間)。それぞれにトイレが設置されているので、2人で使ってもプライバシーは確保できます。
2階は居住スペースで、アパートの1室レベルの住戸が2つ。それぞれにトイレ、風呂、キッチンが付いています。
「建物の中を見たい」と思われる人も多いでしょうが、それが掲載されていないのは中古物件としてではなく、「古家ありの土地」として販売されているから。
つまり取り壊して新しく事務所や倉庫を建築することを想定しているからです。こういうのって多いんですよ。
でも古い建物って安いだけじゃなくて、やりようによっては新しい可能性も生まれます。だからこの企画では、これからもこういう物件を紹介していきたいと思っています。

取り扱っている「アクアエステート木更津」によると、ガレージ付きの住居として使う場合、傷んでいるのでリフォームが必要とのこと。写真が無いのでどの程度傷んでいるのか不明ですが、こういう物件が売りに出ることはそれほど多くありませんから、覚悟を決めて「自分好みの秘密基地を作るんだ」と、リノベに挑戦するのも面白いかもしれません。
君津市は房総半島のほぼ中心地点に位置しています。ツーリングで房総方面に行くとき、君津をベースキャンプにすることができれば、海でも山でも房総半島を隅から隅まで楽しみ尽くすことが可能です。しかも帰る時だって、憂鬱なアクアラインや館山道の渋滞に悩まされることはありません。
実はライター、ゴトー(筆者:後藤武)の知り合いも君津に中古物件を購入しました。彼曰く、この近辺は中古物件の穴場だということです。
もし、君津や木更津は魅力的だけれどもう少し違った家を探したいのであれば、アクアエステート木更津に相談してみてはいかがでしょう?
■物件情報
所在地:千葉県君津市糠田
交通:JR内房線「君津」車8.1km
販売区画数:1区画
価格:980万円
私道負担・道路:共有持分94平米×(1/6)、北東9.3m幅、南東6m幅
土地面積:155.3平米
土地の権利形態:所有権
引き渡し時期:相談
地目:宅地
用途地域:都市計画区域外
設備:公営水道、個別浄化槽、個別LPG
■問い合わせ先
(株)アクアエステート木更津
電話:0438-37-1200
Writer: 後藤武
クラブマン誌や航空雑誌の編集長を経て現在はバイク、食、飛行機などのライターと
して活動中。飛行機とヘリの免許を所持しエアレースのTV解説も担当していたことも。2スト、旧車、V8のアメ車など多数所有。





